Descripción

Encantadora vivienda de dos dormitorios, con abundante luz natural gracias a su doble orientación. Situada junto a la calle Alcalá, a tan solo 2 minutos del metro de Quintana (línea 5).

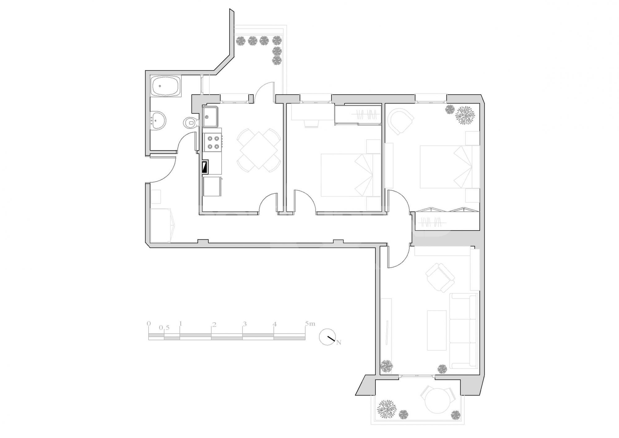
Al acceder a la vivienda, un espacioso vestíbulo da la bienvenida, desde el cual se accede al baño. Hacia el lado este se encuentra el salón con acceso a una terraza, mientras que en el lado oeste, donde predomina el sol de la tarde, están localizados los dos dormitorios, la cocina y otra amplia terraza.

Todas las estancias son generosas en dimensiones, destacando especialmente la cocina, que ofrece una gran capacidad de almacenamiento y espacio suficiente para incorporar una mesa de comedor si se desea.

Aunque la vivienda necesita una reforma, presenta múltiples posibilidades y un enorme potencial. Cabe mencionar que la zona interior de la vivienda da a un imponente patio de manzana con gran amplitud y separación respecto a los edificios colindantes, garantizando una excelente iluminación natural y máxima privacidad. El edificio dispone de ascensor y silla salva escaleras para los cuatro pequeños peldaños del portal.

Se encuentra en un área residencial tranquila, bien comunicada y con todos los servicios cercanos, como colegios, supermercados, jardines y un centro de salud. A pesar de su proximidad a la calle Alcalá, no sufre los ruidos propios de esta.

No dudes en ponerte en contacto con nosotros para ampliar información o concertar una visita. Además, no cobramos honorarios a la parte compradora; el precio que ves anunciado es final, al que únicamente se deben sumar los impuestos, gastos notariales y de registro.

Información

  • 2 habs
  • 1 baños
  • 86 m2

Certificado energético

G

Situación aproximada